おすすめ売買物件

【 中古 一戸建て 】【要リペア住宅】きれいに維持管理してあります。

最寄駅所在地面積築年月価格間取り

JR北陸新幹線「糸魚川駅」 車 2分

新潟県糸魚川市上刈1丁目4番1号

土地/214.40㎡

建物/126.87㎡

1996年07月 980万円 5 DK

価格改定しました。この物件は空き家バンク登録物件です。

子育て世代の方~。部屋数の多い中古住宅でましたぁ~。8DKの間取りですよぉ~。

中古住宅の場合駐車場の問題はつきものですが、

この物件は現状で「車庫駐車1台可能(大型車は不可)」の物件です。

ぜひご検討くださいまし。

建物は混構造の建物です。木造とRCが複合されています。

糸魚川空き家バンク登録物件です。

 

物件写真・間取り

外観です(^^♪
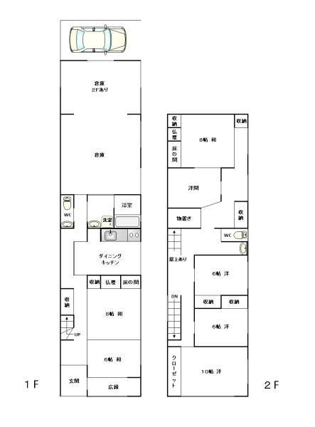
間取り~
玄関
2間続きの和室THE JAPANESE
キッチン☆彡(システムキッチン)
キッチン☆彡(システムキッチン)
お風呂はユニットバス
トイレも清潔感あり。
洗面台☆彡
洋室☆彡
2F洋室。
2F和室
2Fトイレ
2F洗面あります。
屋上もあります。

物件概要

物件名

【中古土地建物】新潟県糸魚川市上刈1丁目4番1号登場♪糸魚川小学校区駅近物件

交通機関

JR北陸新幹線「糸魚川駅」 車 2分

えちごトキめき鉄道「糸魚川駅」 徒歩 5分

市街地巡回線 バス 3分 「上刈1丁目」下車徒歩2分

所在地

新潟県糸魚川市上刈1丁目4番1号

価格

980万円

間取り 5~ DK
間取り詳細

1F:和6.0、8.0、倉庫、DK、トイレ、洗面所、バス、2F:洋6.0×2、洋10.0、洋5.8、和8.0

土地権利 所有権
土地面積

214.40㎡

建物面積

126.87㎡

建物構造 木造
階 / 階数

3階建

築年月

1996年07月

都市計画 非線引区域
用途地域 第一種住居地域
建ぺい率

70%

容積率

200%

駐車場
その他制限

居住誘導区域内、都市機能誘導地域内

接道
二方
方向:東側 道路幅員:8.65m
方向:北側 道路幅員:3.82m
地目 宅地
現況 建物有
販売戸数

1

引渡し 相談
設備都市ガス・コンロなし・エアコン1台付・給湯有(故障)・ユニットバス・洋式便器
備考①設備関係につきましては動作確認後の引渡となりますが、状態により撤去または現状にて引き渡す場合があります。
②一部建物を除却することで2台分程度の駐車場が確保できます。
③仲介手数料:427,400円(税込)契約印紙代:10,000円が必要です。*別途登記費用が必要。
取引態様 媒介
物件番号BUY-HOU005
情報登録日2025年10月15日
情報更新日情報登録日より2週間

物件地図人型アイコンを地図上にドラッグするとストリートビューで表示されます。

【中古土地建物】新潟県糸魚川市上刈1丁目4番1号登場♪糸魚川小学校区駅近物件

新潟県糸魚川市上刈1丁目4番1号

地図を戻す

資料請求・お問い合わせ

お問い合わせ内容
物件名/物件番号 【BUY-HOU005】 【中古土地建物】新潟県糸魚川市上刈1丁目4番1号登場♪糸魚川小学校区駅近物件
お名前
電話番号
ご住所
郵便番号を調べる



メールアドレス
確認のため同じアドレスをご入力ください。
備考欄ご希望の連絡方法、見学希望日、希望条件、質問などがございましたら、ご記入ください
小中学校一覧で物件検索一覧(売買)
小中学校一覧で物件検索一覧(賃貸)
会社案内

株式会社 糸魚川不動産

新潟県糸魚川市中央1丁目7番4号

メールフォームはこちら

宅建免許番号:新潟県知事(15)684号

代表メールアドレス
info@itoigawafudosan.com
アパートマンション入居者専用ページ
アパマン退去受付ページ