【 中古 一戸建て 】価格改定!糸魚川空き家バンク登録物件糸-263
| 最寄駅 | 所在地 | 面積 | 築年月 | 価格 | 間取り |
|---|---|---|---|---|---|
JR北陸新幹線「糸魚川駅」 徒歩 11分 | 新潟県糸魚川市寺町5丁目5番3号 | 土地/283.97㎡ 建物/101.30㎡ | 2021年07月 | 1,300万円(税別) | 2 K |
【開業・起業の方に朗報!】
事務所を設立して開業したい方へ・・・・・・。
築年数が極めて浅い(9年)の事務所出ましたぁ~。
このような物件が珍しいのでご検討されることお勧めいたします。
現在物件は使用中ですので内覧等は事前にご連絡が必要になります。
リフォームの仕方次第ですが住居にも変更可能です。
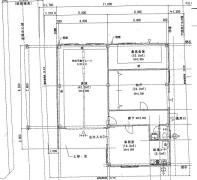
物件写真・間取り
物件概要
| 物件名 | 【中古土地建物事業用】築9年!【移転、新規開業、業務拡大に!事務所倉庫!】 |
|---|
| 交通機関 | JR北陸新幹線「糸魚川駅」 徒歩 11分 ときめき鉄道日本海ひすいライン「糸魚川駅」 車 3分 市街地巡回線 バス 6分 「南寺町3丁目」下車徒歩6分 |
|---|
| 所在地 | 新潟県糸魚川市寺町5丁目5番3号 |
|---|
| 価格 | 1,300万円 (税別) |
|---|
| 間取り | 2 K |
|---|
| 間取り詳細 | 洋7.26・洋6.59・倉庫(車庫)24.8・倉庫4.53(畳) |
|---|
| 土地権利 | 所有権 |
|---|
| 土地面積 | 283.97㎡ |
|---|
| 私道負担面積 | 無し |
|---|
| 建物面積 | 101.30㎡ |
|---|
| 建物構造 | 木造 |
|---|
| 階 / 階数 | 平屋建 |
|---|
| 築年月 | 2021年07月 |
|---|
| 都市計画 | 非線引区域 |
|---|
| 用途地域 | 第一種住居地域 |
|---|
| 建ぺい率 | 60% |
|---|
| 容積率 | 200% |
|---|
| 駐車場 | 有 |
|---|
| その他制限 | 居住誘導区域内、都市機能誘導地域外 |
|---|
| 接道 |
|
|---|
| 地目 | 宅地 |
|---|
| 現況 | 完成済 |
|---|
| 販売戸数 | 1 |
|---|
| 引渡し | 相談 2024年4月~ |
|---|
| 備考 | ●仲介手数料:587,400円(消費税10%込)売買価格1,580万円の場合 ●契約印紙代:10,000円 その他必要な費用 ●所有権移転登記費用 概算25万円程度 ●ローン利用の場合の諸経費 各種金融機関による ●年間固定資産税:約17万円程度(土地建物) ●水道配管分岐が必要です。*売主負担 ●土地分筆費用及び塀を設置いたします。 |
|---|
| 取引態様 | 媒介 |
|---|
| 物件番号 | BUY-BIZ003 |
|---|
| 情報登録日 | 2025年11月19日 |
|---|
| 情報更新日 | 情報登録日より2週間 |
|---|























