【 店舗・事務所 】新登場!街なか貸事務所【介護施設・事務所・販売拠点等の利用に最適】
| 最寄駅 | 所在地 | 間取り | 面積 | 築年月 | 賃料 管理費等 | 敷金 礼金 |
|---|---|---|---|---|---|---|
JR北陸新幹線「糸魚川駅」 徒歩 6分 | 新潟県糸魚川市南押上3丁目8番35号 | 2 R | 98.76㎡ | 2005年10月 | 150,000円(税別) | 1ヶ月 1ヶ月 |
新登場!! 貸事務所の登場です(^^♪
エアコン有ります。
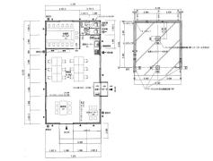
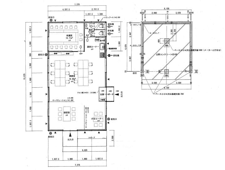
広めのフロアと会議室程度の大きさの2フロアです。トイレが和洋2台ございます。
打合せ室にご利用したり、用途色々お使いできますよ~
内覧可能です。是非ご検討下さいませ(^^♪
駐車場はなんと10台駐車可能です!
物件写真・間取り
物件概要
| 物件名 | 12/19最新更新!南押上3丁目貸事務所 2フロアタイプ |
|---|
| 交通機関 | JR北陸新幹線「糸魚川駅」 徒歩 6分 日本海ひすいライン「糸魚川駅」 車 2分 市街地巡回線 バス 0分 「糸魚川駅北口」下車徒歩6分 |
|---|
| 間取り詳細 | 2フロア・簡易キッチン付・トイレ和洋各1か所 |
|---|
| 建物構造 | 木造 |
|---|
| 所在階 / 階数 | 平屋建て/1階 |
|---|
| 主要採光面 | 南側 |
|---|
| バルコニー面積 | 無し |
|---|
| 駐車場 | 敷地内10台可能 |
|---|
| 駐車場料金 | なし |
|---|
| 住宅保険 | 加入必須 |
|---|
| 保険料 | 2年間 21,200円~ |
|---|
| 契約期間 | 3年間(更新料有り) |
|---|
| 引渡 | 即入居可 |
|---|
| 現況 | 空 |
|---|
| 設備・条件 | エアコン有り、ミニキッチン(瞬間湯沸器有り)、キッチン換気扇有り、トイレ有り |
|---|
| 備考 | 仲介手数料:165,000円(税込) |
|---|
| 取引態様 | 媒介 |
|---|
| 情報登録日 | 2025年12月19日 |
|---|
| 情報更新日 | 情報登録日より2週間 |
|---|






















